3 Camere 1 Bagni 128 m2
Caratteristiche principali
Codice
ES
Prezzo
280.000 EUR / trat.
Spese condominiali
800 EUR
Classe
G
Locali
4
Altre caratteristiche e accessori
Stato Immobile
Buono
Grado
Medio
Posizione
Centro
Panorama
Vista Monti
Piano
Secondo
Orientamento
Nord Ovest Sud Est
Totale Piani
Due
Lati Liberi
3
Tipo Soggiorno
Soggiorno
Tipo Cucina
Abitabile
Riscaldamento
Autonomo
Tipo Riscaldam.
Caldaia
Tipo Impianto
Radiatori
Fonte Energetica
Metano
Acqua Calda
Autonoma
Raffrescamento
Split
Infissi
PVC Doppio Vetro
Serramenti
Ottimo
Persiana
Tapparella PVC
Pavim. Giorno
Marmo
Pavim. Notte
Marmo
Pavim. Cucina
Marmo
Pavim. Bagno
Gres Porcellanato
Cantina - Solaio
Cantina
Accesso Disabili
Nessuna Barriera
Accessori
Aria Condizionata, Ascensore, Cassaforte, Doppi Vetri, Porta Blindata, Zanzariere
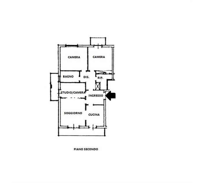
In condominio composto da sole 4 unità abitative dotato di ascensore proponiamo in vendita un bellissimo appartamento di oltre 100 mq da poco riqualificato posto al piano secondo e suddiviso in ampio ingresso, soggiorno con affaccio sulla cucina abitabile, 3 camere dalle dimensioni importanti di cui 2 matrimoniali, un bagno ristrutturato recentemente ed un comodo ripostiglio. L'appartamento ha 3 balconi e uno splendido lastrico solare condominiale. Completa la soluzione una cantina al piano interrato. € 280.000
via Ugo Braschi , Santarcangelo di Romagna (RN)
Cookie preference